Nemovitosti

Pronájem RD 4+1 Opatovice

Opatovice, Sportovní

14 500,- za měsíc elektřina a plyn přepis na nájemce, cca 5 000, - Kč, stočné se platí jednou ročně, cca 5 800, - Kč

Popis nemovitosti

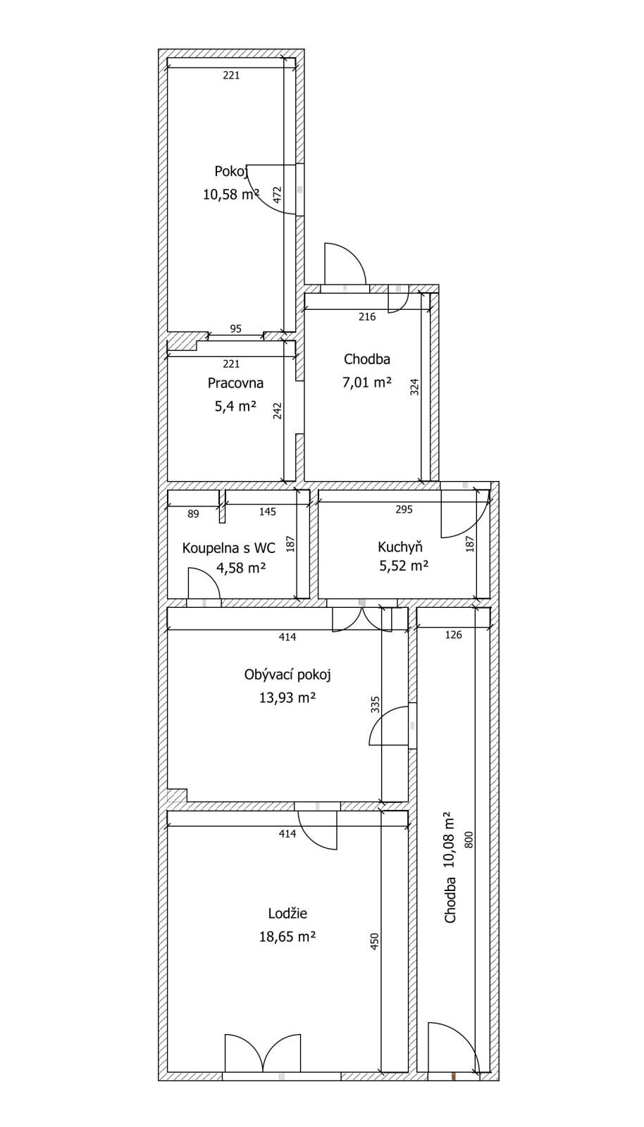
Nabízíme k pronájmu částečně zařízený rodinný dům s dispozicí 4+1 v Opatovicích. Celková plocha činí 157 m² a součástí je malý uzavřený dvorek.

Dispozice:
Chodba, obývací pokoj, ze kterého je vstup do koupelny se sprchovým koutem a toaletou, a dále do ložnice. Z chodby je vstup do kuchyně, do pracovny a do dalšího pokoje. Z chodby je také vstup na uzavřený dvorek, který poskytuje absolutní soukromí, a k dispozici je rovněž komora.
Dům se pronajímá částečně zařízený.

Obec Opatovice se nachází 14 km jižně od Brna a má dobrou občanskou vybavenost. Nachází se zde mateřská škola, základní škola, restaurace, obchod, kozí farma a další. Dopravní dostupnost do Brna je zajištěna IDS, dojezd autem je přibližně 15 minut.

Bezbariérový

Ne

Datum poslední úpravy

26.11.2025

Subtyp nemovitosti

Rodinný dům

Elektřina

230V

Vydaný certifikát PENB

G - Mimořádně nehospodárná

ID nemovitosti

00050

K nastěhování od

1.1.2026

Kanalizace

Veřejná kanalizace

Konstrukce

Cihlová

Město

Opatovice

Nemovitost přidána dne

24.11.2025

Operace

Pronájem

Plocha podlahová

76 m2

Plocha pozemku

157 m2

Plocha užitná

76 m2

Stav objektu

Dobrý

Typ certifikátu PENB

č. 264/2020 Sb.

Typ nemovitosti

Dům, vila

Ulice

Sportovní

Umístění objektu

Klidná část obce